dienst Onderwijs- en StudentenZaken
Universitair Medisch Centrum St Radboud te Nijmegen

Voor dit gebouw zijn meerdere (historische) namen in omloop:

  • Studiecentrum Medische Wetenschappen (SMW)
  • Prekliniek
  • Nieuw Preklinisch Instituut (NPI)
  • Preklinisch Instituut (lange gang)

(gebouwnummers M230 en M205)

Adres
Geert Grooteplein 21
6525 EZ Nijmegen
(aan de Noordzijde van het Geert Grooteplein)

http://owiwebserver.umcn.nl/fmw/db/GGplM230ingang.jpg

 

plattegrond Onderverdieping

onderwijsruimten:

  • Moulin De A t/m F (routenr.124)
  • Vesalius A & B (routenr.105; snijzaal)

http://owiwebserver.umcn.nl/fmw/db/M230M205_Onderverdieping.gif

 

plattegrond Begane Grond en "Lange Gang"

onderwijsruimten:

  • Anatomisch museum (routenr.101)
  • Komeetzaal A (routenr.78; COO ruimte)
  • Einthoven A t/m C (routenr.105; droog practicumruimte)
  • Harvey A t/m B (routenr.105; droog practicumruimte)
  • Hippocrates (routenr.77; hoorcollegezaal)
  • Huygen A t/m F (routenr. 141;werkgroepruimte)
  • Kantine (routenr.76)
  • Mertens A (routenr.122; responsieruimte)
  • Mertens B (routenr.123; responsieruimte)
  • Mertens C & D (routenr.139; responsieruimte)
  • Mertens E & F (routenr.140; responsieruimte)
  • Pasteur A & B (routenr.105; nat practicumruimte)
  • Vesalius A (routenr.105; snijzaal / bevindt zich op onderverdieping)

http://owiwebserver.umcn.nl/fmw/db/M230M205_BeganeGrond.gif

plattegrond 1e verdieping

Onderwijsvoorzieningen

Onderwijsruimten

  • Colloquimkamer 4 (routenr.89; werkgroepruimte)
  • Komeet A (routenr.78; COO ruimte)
  • Komeet B & C (routenr.85; COO ruimte)
  • Komeet D (routenr.83; COO ruimte)
  • Lammers (routenr.86; hoorcollegezaal)
  • Noyons A & B (routenr.92; werkgroepruimte)
  • Noyons C & D (routenr.90; werkgroepruimte)
  • Vendrik A & B (routenr.93; werkgroepruimte)
  • Vendrik C & D (routenr.91; werkgroepruimte)


Al deze voorzieningen/ruimten bevinden zich op de 1e verdieping en zijn te bereiken via de hoofdingang op G.G.Plein 21. Ga via de hoofdingang naar binnen, loop door de gang heen en neem de brede houten trap aan de rechter zijde.

Het Klinisch TrainingsCentrum (KTC), de Medische Bibliotheek en het Radboud Auditorium zijn bereikbaar via de loopbrug ("omloop") welke zich bevindt op het niveau van de 1e verdieping.

http://owiwebserver.umcn.nl/fmw/db/M230_1everdieping.gif

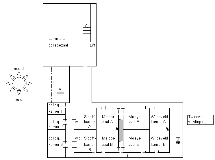
plattegrond 2e verdieping

onderwijsruimten:

  • colloquiumkamer 1 t/m 3 (routenr.97; werkgroepruimte)
  • Majoor A & B (routenrs.95 & 98; responsieruimte en koppelbaar tot hoorcollegezaal)
  • Moeys A & B (routenrs.96 & 99; responsieruimte)
  • Wijdeveld A & B (routenrs.96 & 99; werkgroepruimte en koppelbaar tot responsiezaal)
  • Slooff A & B (routenrs.95 & 98; werkgroepruimte)

http://owiwebserver.umcn.nl/fmw/db/M230_2everdieping.gif